とは
トップ
現地・マンションギャラリー案内図
物件概要
資料請求
来場予約
限定サイト
MENU
Top
トップ
ONE TIME
「長崎西洋館」跡地開発
1 min
電停徒歩1分
BECOME ONE
「プラっとモール長崎」
隣接新街区
PLAN
間取り
LANDPLAN
ランドプラン
STYLE SELECT
SYSTEM
スタイルセレクトシステム
BRAND
ブランド
とは
資料請求
来場予約
限定サイト
物件概要
現地・MG案内図
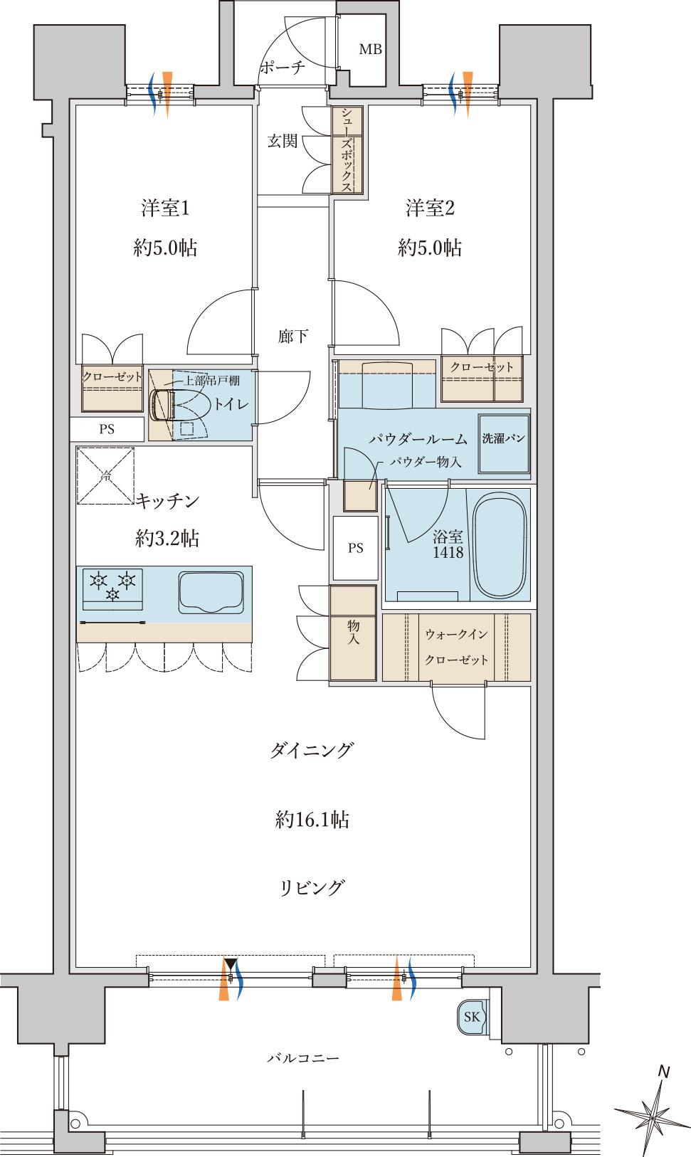
B
type
専有面積
66
.00m²
(19.96坪)
バルコニー面積
11.35m²
(3.43坪)
3
LDK
+WIC
Basic Plan
間取り一覧に戻る
WIC:ウォークインクローゼット
掲載の間取り図は計画段階に描き起こしたもので実際とは異なる場合があります。
方位記号は若干誤差があります。正確な方位については設計図書でご確認ください。
TEL
物件概要
資料請求
来場予約